The Flour Barn
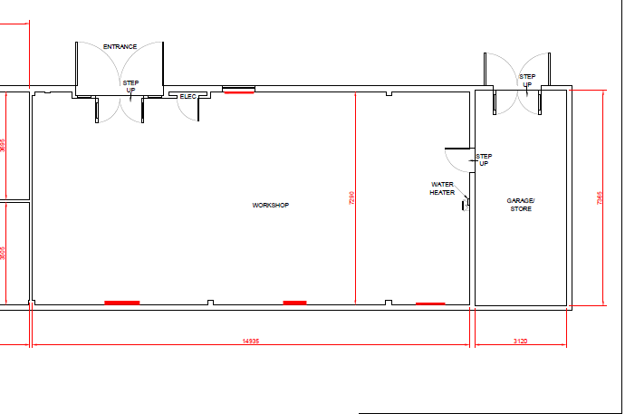
The Flour Barn is one half of a single storey, former farm building that has been converted into 1100sq ft of offices and/or warehouse space, with allocated parking. The propertyhas recently had a full refurbishment including new kitchen and toilets and the the flooring can be chosen to suit any prospective tenant’s requirements.
The windows and doors are double glazed PVC and the building benefits from Gigaclear super fast broadband and 3 phase electricity.
No service charge is payable on this property
This property is a blank canvas and can be adapted to any use. Please get in touch for more information.
Make a property enquiry.
Location
Frilsham Home Farm is located on the southern edge of the charming village of Yattendon and has a strong business community with opportunities for networking with other business tenants. Yattendon is a walkable distance and includes a Village Stores and Post Office, The Pantry coffee shop and the famous Royal Oak hotel, restaurant and pub.
Yattendon is ideally situated midway between junctions 12 (Theale) and 13 (Newbury) of the M4 with good links to the North and South via the A34. Pangbourne and Theale train stations are equidistant and offer direct rail services to London Paddington.
Outside
The property has allocated parking and there is also a communal car park available.
Amenities
-
1100 square foot of office/workshop space
-
PVC windows and doors
-
Superfast broadband
-
Allocated parking
-
In a business community
-
Rural location
-
No service charge payable
Details
-
Type:Commercial
-
Status:Let
-
Terms:Available by way of full repairing and insuring lease, term to be agreed but minimum 3 years preferable.
-
Price:£18,700 per annum exclusive of all other outgoings
-
Each party is responsible for their own legal costs.
-
VAT is payable on this property
-
Energy Efficiency Rating:C- 65
-
Local Authority:West Berkshire District Council








